|
AQUAmax® Professional.
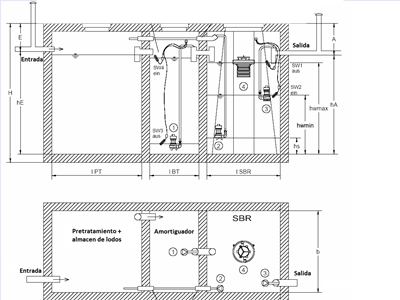
Tratamiento con capacidad hasta 150,000 litros por día para aguas residuales sanitarias y aguas residuales con altas cargas orgánicas.
Aplicaciones generales: fraccionamientos, pequeñas poblaciones, hoteles, centro vacacionales, escuelas, etc.
Aplicaciones especiales: queserías, rastros, fincas cafetaleras, procesos de alimentos, etc.
Operación automatizada, bajos costos de mantenimiento y energético.
Opción de instalación sobre piso en tanques prefabricados o con tanques completamente enterrados (discreto y transitable).
Folletos: AQUAmax® Professional, AQUAmax® Professional_2, Proyectos especiales.
Seguir Lineas: PUROO® Residencial, Versátil, Municipal
|